











| Kohdenumero | 7986 |
| Kohdetyyppi | Toimistotila | Sijainti | Yliopistonkatu 30 |
| Kaupunginosa | Keskusta |
| Huoneluku | |
| Pinta-ala | 1 758,0 m² |
| Vapautuminen | Heti vapaa |
| Vuokra / kk | 0 € |
| Sopimustyyppi | Toistaiseksi |
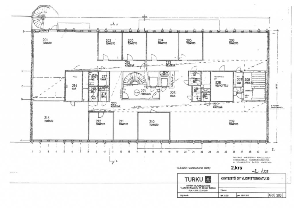
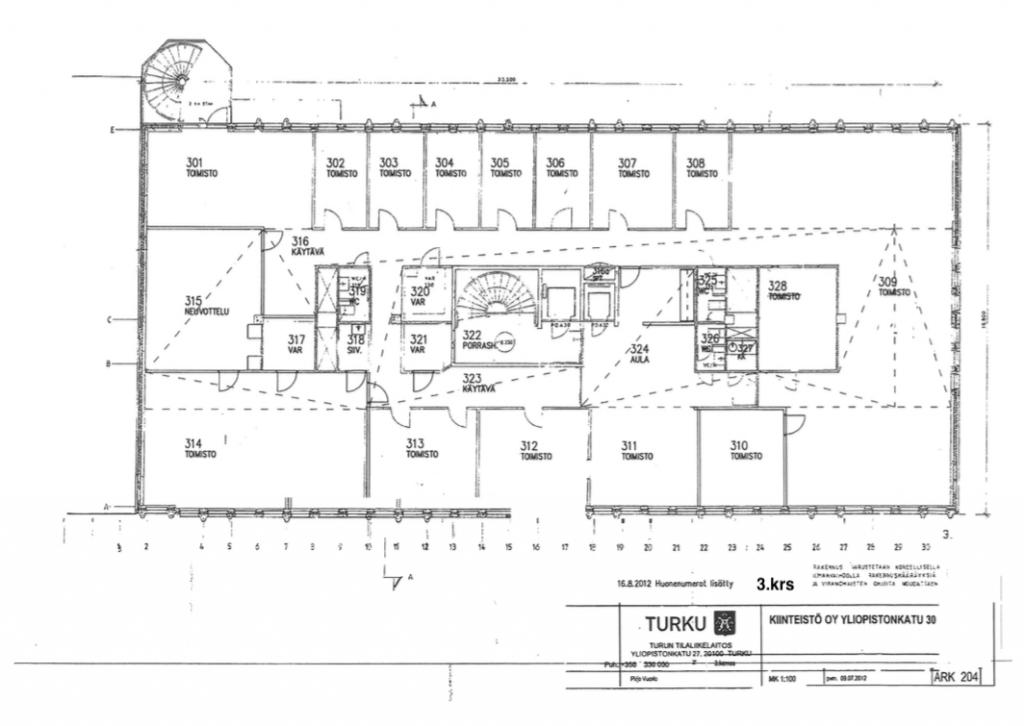
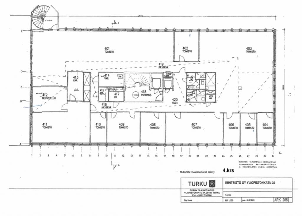
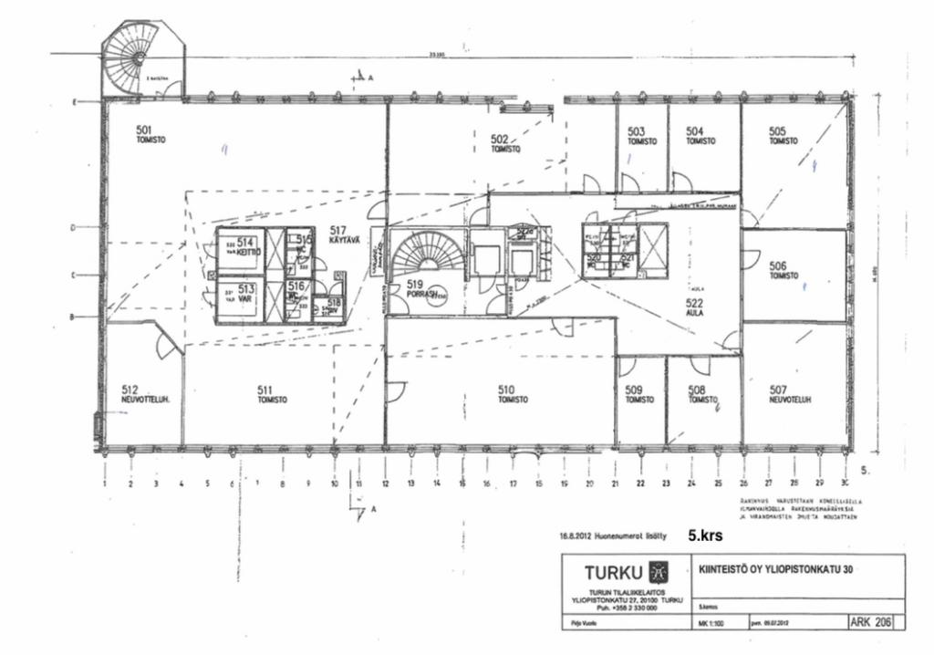
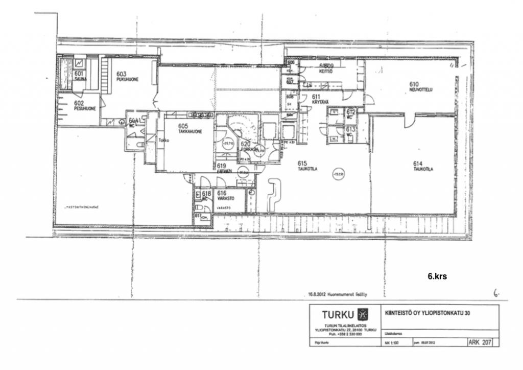
Vuokrataan 1 758 m2 toimistotila. Vuokrattava kohde sijaitsee Turun ydinkeskustassa, osoitteessa Yliopistonkatu 30, kahden korttelin päässä kauppatorilta. Vuokrattavana kerrokset 2-6, kerros on aina noin 560m2, eli yhteensä tilaa vapautuu noin 2 930 m2. Kerros jaettavissa puoliksi. Kerroksien pohjaratkaisut eroavat jonkin verran toisistaan, mutta pääasiallisesti kerrokset ovat jaettu eri kokoisiin huoneisiin. Soveltuu vaikka väistötilaksi tai muuhun väliaikaiskäyttöön, kiinteistön tuleva käyttö varmistuu loppuvuoteen 2022 mennessä. Tilat vuokrataan siinä kunnossa kuin ne nyt ovat. Vapautuu 1.8.2021 Kysyy lisätietoja
Tony Rosenblad
Hallituksen puheenjohtaja
+358 50 551 5375
Lähetä viesti