Arkadiankatu 23, 00100 Helsinki

Toimistotila, 486 m²

0 € / kk

0 € / kk

Perustiedot

Kohdenumero 7917
Kohdetyyppi Toimistotila
Sijainti Arkadiankatu 23
Kaupunginosa
Huoneluku
Pinta-ala 486,0 m²
Vapautuminen Heti vapaa
Vuokra / kk 0 €
SopimustyyppiToistaiseksi
Video

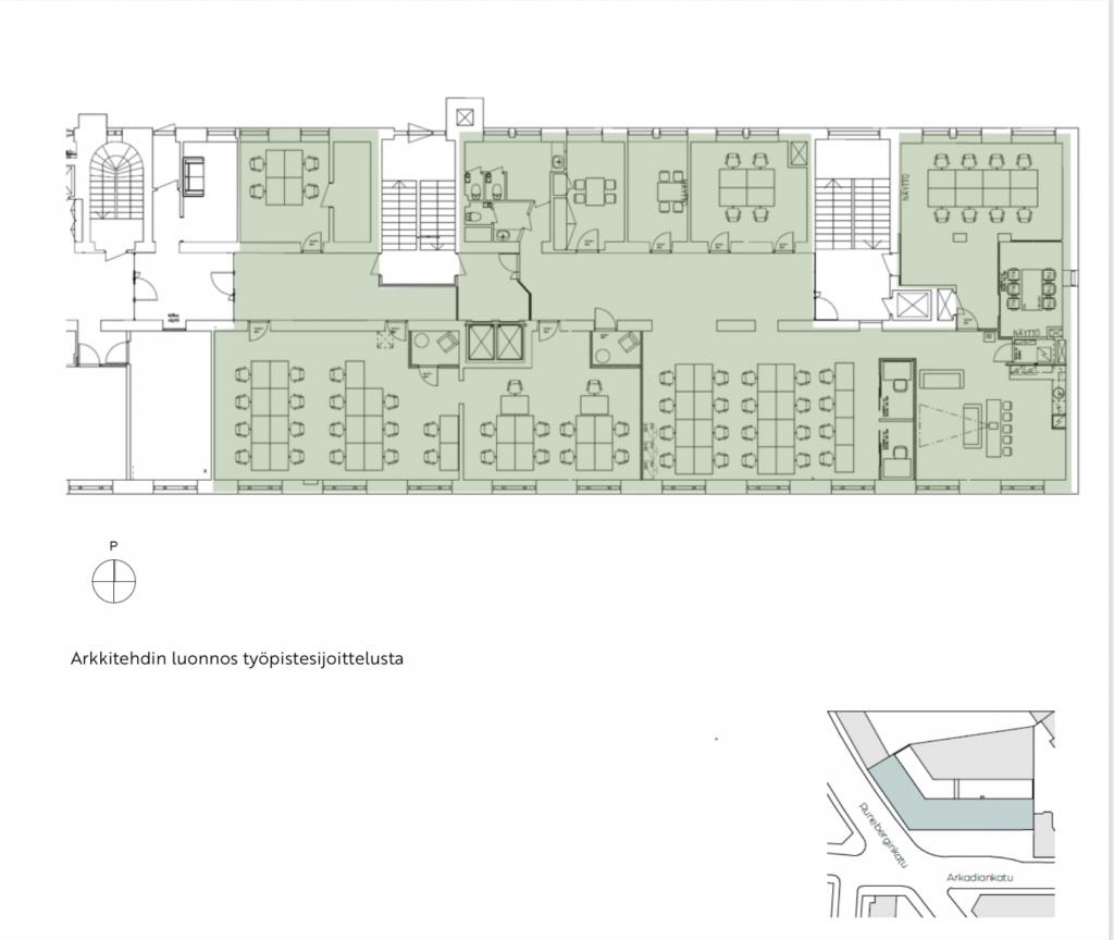
  Vuokrataan 3. kerroksen valoisa 486m2 toimisto, joka tarjoaa työpisteen noin 40 - 50 henkilölle. Tilassa tiimitiloja ja pienempiä ryhmähuoneita. Erillisiä puhelinhuoneita sekä tilava taukotila. Arkadiankatu 23 kiinteistössä on tehty kattavat remontit 2015-2018, jonka yhteydessä toimistotilat on modernisoitu nykypäivän vaatimustasoon. Alakerran kahvilan ja ravintolan lisäksi talon piha- siivessä on jopa 120 hengen seminaaritila ja talon ylemmissä kerroksissa on 40 hengen auditorio sekä 30 ja 10 hengen kokoustilat. Sisäpihan puolella toimii Elixia Töölö, jolla on viihtyisät n. 1 100 neliön tilat kahdessa Kahvila-, ravintola- ja kokouspalvelut tarjoaa Antell. Kuntosali- ja ryhmäliikuntapalvelut tarjoaa Elixia. Erinomaiset julkiset kulkuyhteydet. Aimo Park pysäköinti kiinteistön yhteydessä, pysäköintipaikkoja hallissa ja pihalla. Kysy lisää Jouko Raitanen Helsinki puh. 0504695444  

  Navigoi kohteeseen
Sauna Ei saunaa

Jouko Raitanen

  050 469 5444
  Lähetä viesti

Haluatko lisätietoja juuri tästä kohteesta?

Syötä yhteystietosi niin lähetämme lisätietoja!

Kiitos, otamme sinuun pian yhteyttä!