Aviapolis










| Kohdenumero | 7648 |
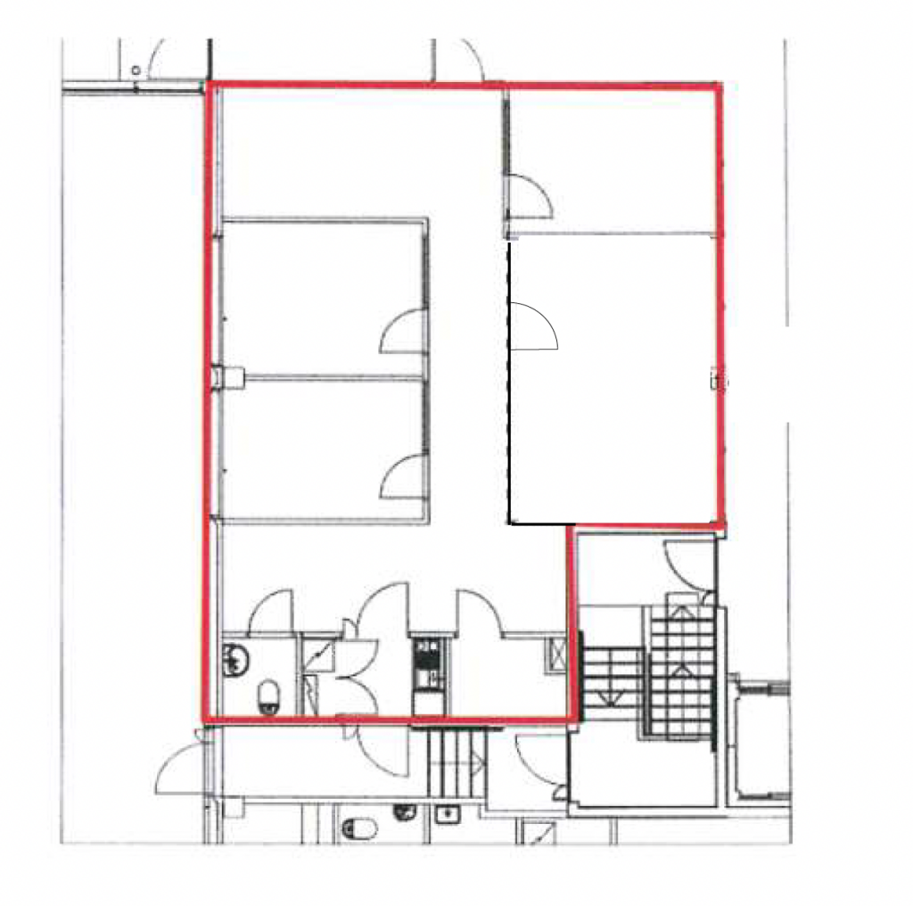
| Kohdetyyppi | Toimistotila | Sijainti | Äyritie 8 |
| Kaupunginosa | Aviapolis |
| Huoneluku | |
| Pinta-ala | 103,0 m² |
| Vapautuminen | Heti vapaa |
| Vuokra / kk | 0 € |
| Sopimustyyppi | Toistaiseksi |
Katutason valoisa toimistotila, joka sopii myös showroom tilaksi. Oma wc ja pieni toimistokeittiö. Gate8 tarjoaa hyvät oheispalvelut ja runsaasti parkkitilaa.
| Sauna | Ei saunaa |
Mika Tilli
Välittäjä, LKV
0407013005
Lähetä viesti