







| Kohdenumero | 7298 |
| Kohdetyyppi | Toimistotila | Sijainti | Itälahdenkatu 23 |
| Kaupunginosa | |
| Huoneluku | |
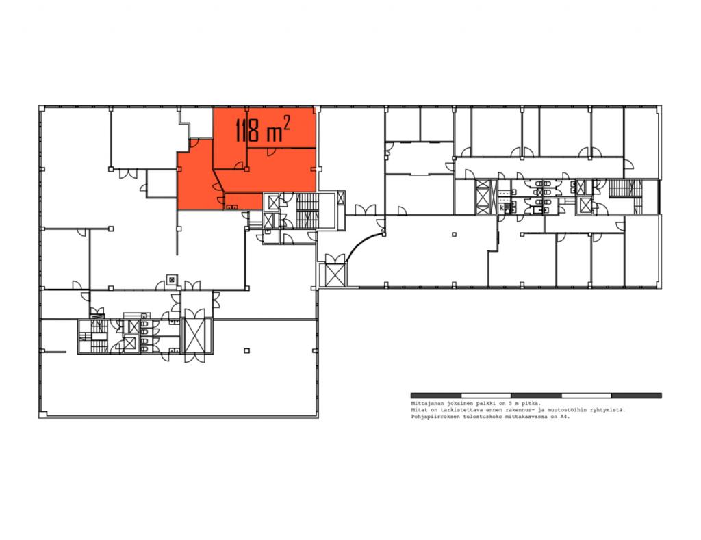
| Pinta-ala | 118,0 m² |
| Vapautuminen | Heti vapaa |
| Vuokra / kk | 0 € |
| Sopimustyyppi | Toistaiseksi |
Vuokrataan kolmannen kerroksen 118m2 monipuolinen toimistotila, jossa lisäksi pieni varastotila. Iso aula ja kaksi erillistä toimistohuonetta. Omat wc:t. Kysy lisää Jouko Raitanen Helsinki puh. 0504695444
Jouko Raitanen
050 469 5444
Lähetä viesti