



















| Kohdenumero | 7294 |
| Kohdetyyppi | Toimistotila | Sijainti | Urho Kekkosen katu 3-7 |
| Kaupunginosa | |
| Huoneluku | |
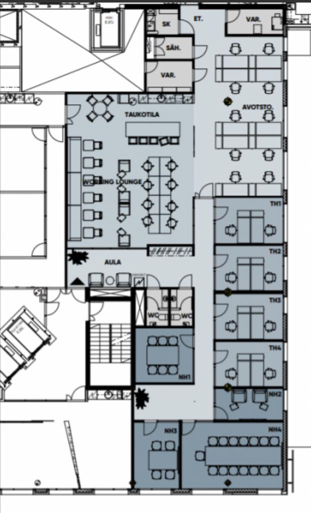
| Pinta-ala | 336,0 m² |
| Vapautuminen | Heti vapaa |
| Vuokra / kk | 0 € |
| Sopimustyyppi | Toistaiseksi |
Vuokrataan näyttävä korkeatasoinen 336 m² toimisto Kampin sydämessä. Tila sijaitsee neljännessä kerroksessa. Kampintorni on osa Kampin kauppakeskuksen yhteydessä sijaitsevaa toimistorakennuskokonaisuutta. Trigora on rakennettu 2005, toimistotilaa kolmessa tornissa yhteensä 12 000 m2 ja sen on suunnitellut Pekka Helin. Torneista on suora yhteys kauppakeskukseen joten kattavat palvelut, ravintolamaailma, kaupat, julkiset kulkuvälineet ja parkkihallit välittömässä läheisyydessä. Kysy lisää Jouko Raitanen Helsinki puh. 0504695444
| Sauna | Ei saunaa |
Jouko Raitanen
050 469 5444
Lähetä viesti