Nikkilä




| Kohdenumero | 7134 |
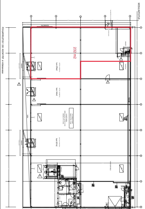
| Kohdetyyppi | Liiketila | Sijainti | Ansiokatu 2 |
| Kaupunginosa | Nikkilä |
| Huoneluku | Katutason liiketila |
| Pinta-ala | 232,0 m² |
| Vapautuminen | Heti vapaa |
| Vuokra / kk | 0 € |
| Sopimustyyppi | Toistaiseksi |
Vuokrattavana katutason liiketila 232 m2 hyvien kulkuyhteyksien varrelta. Omat sosiaalitilat. Samassa kiinteistössä toimii Laattapiste ja Tamrex Oy.
| Sauna | Ei saunaa |
Heli Reinberg
040 647 4900
Lähetä viesti