Keskusta


| Kohdenumero | 6980 |
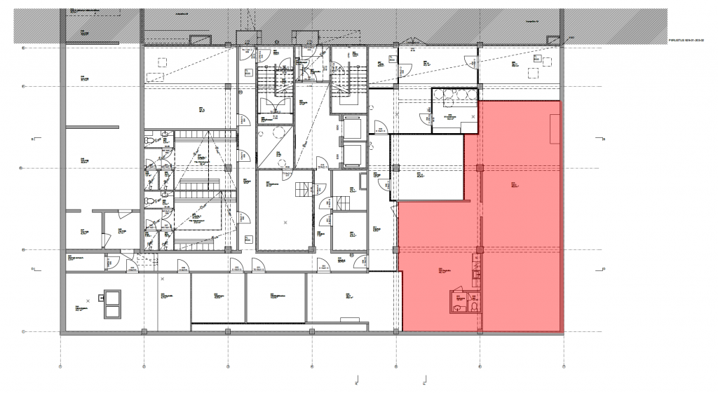
| Kohdetyyppi | Varasto | Sijainti | Lönnrotinkatu 11 |
| Kaupunginosa | Keskusta |
| Huoneluku | |
| Pinta-ala | 148,5 m² |
| Vapautuminen | Heti vapaa |
| Vuokra / kk | 0 € |
| Sopimustyyppi | Toistaiseksi |
Keskusta ikkunaton varastotila 148,5 m2 kellarikerroksessa. Wc ja minikeittiö.
| Sauna | Ei saunaa |
Mika Tilli
Välittäjä, LKV
0407013005
Lähetä viesti