Kamppi








| Kohdenumero | 6904 |
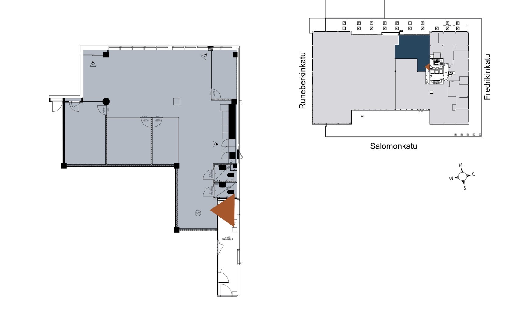
| Kohdetyyppi | Toimistotila | Sijainti | Salomonkatu 17 |
| Kaupunginosa | Kamppi |
| Huoneluku | |
| Pinta-ala | 162,0 m² |
| Vapautuminen | Heti vapaa |
| Vuokra / kk | 0 € |
| Sopimustyyppi | Toistaiseksi |
Vuokrataan 162m2 toimitila perinteikkäässä Autotalossa, Helsingin Kampissa. Tämä moderni toimitila on remontoitu vuonna 2016. Sijainti Kampissa takaa erinomaiset liikenneyhteydet erityisesti julkisilla kulkuvälineillä. Autotalon alakerrassa on kattava ravintolamaailma ja Kampin monipuoliset palvelut sijaitsevat kävelyetäisyydellä.
| Sauna | Ei saunaa |
Jouko Raitanen
050 469 5444
Lähetä viesti