Satama




| Kohdenumero | 6819 |
| Kohdetyyppi | Toimistotila | Sijainti | Kuljetuskatu 3 |
| Kaupunginosa | Satama |
| Huoneluku | |
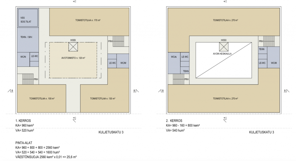
| Pinta-ala | 800,0 m² |
| Vapautuminen | Heti vapaa |
| Vuokra / kk | 0 € |
| Sopimustyyppi | Toistaiseksi |
Vuokrattavana uudisrakennuksesta 2 500m2 toimistotilat osoitteessa Kuljetuskatu 3, Turku. Rakennukseen tulee 3 kerrosta joiden koko on n. 800m2 / kerros. Rakennustyöt aloitetaan 2020 aikana. Asiakkaalla mahdollisuus vaikuttaa kerroksen lay-outiin ja sisustusmateriaaleihin tässä vaiheessa. Vuokrataso 19,5 euroa/m2 + hoitovuokra + alv. Parkkipaikkoja yhtensä 77 kpl
Tony Rosenblad
Hallituksen puheenjohtaja
+358 50 551 5375
Lähetä viesti