





| Kohdenumero | 6524 |
| Kohdetyyppi | Toimistotila | Sijainti | Valimotie 1 |
| Kaupunginosa | Pitäjänmäki |
| Huoneluku | |
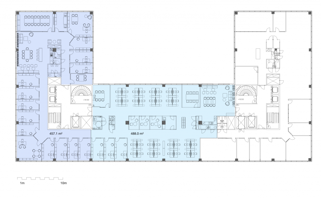
| Pinta-ala | 457,0 m² |
| Vapautuminen | Heti vapaa |
| Vuokra / kk | 0 € |
| Sopimustyyppi | Toistaiseksi |
Vapaana koko 3. krs 457 m2 ja 488 m2 toimistot. Valimotie 1 on 7-kerroksinen toimistokiinteistö Pitäjänmäen näkyvimmällä paikalla Pitäjänmäentien ja Valimotien kulmassa. Kiinteistö on muutama vuosi sitten uudistettu ja saneerattu nykyaikaan. Kaikki vuokrattavat toimistot muokataan vuokralaisten tarpeiden mukaisiksi. Kiinteistö on kokonaispinta-alaltaan noin 13400 m2 ja kerroskoko on 1458 m2. Kellarikerroksessa on varastotiloja ja sosiaalitilat suihkuineen pyöräilijöille. Lämpimässä autohallissa 140 pysäköintipaikkaa. Vieraspaikkoja talon pihalla. Vuokrattavat tilat voivat olla huoneita, avotilaa tai niiden yhdistelmiä. Kaikissa tiloissa on jäähdytys ja ne on varustettu Cat6-kaapeloinnilla. Kaikkiin kerroksiin on henkilö- ja tavarahissiyhteys, lastauslaituri kiinteistön sisäpihalla. Erinomaiset liikenneyhteydet, noin 20 bussilinjaa, Valimon juna-asema 600m, Raide-Jokeri tulee kulkemaan vierestä.
Risto Taimela
0400 674 900
Lähetä viesti