Kamppi


| Kohdenumero | 6094 |
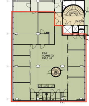
| Kohdetyyppi | Toimistotila | Sijainti | Ruoholahdenkatu 8 |
| Kaupunginosa | Kamppi |
| Huoneluku | Huonetoimisto |
| Pinta-ala | 252,0 m² |
| Vapautuminen | Heti vapaa |
| Vuokra / kk | 0 € |
| Sopimustyyppi | Toistaiseksi |
Vuokrattavana toimistotila 252 m2. Tila sijaitsee 2.kerroksessa ja se remontoidaan vuokralaisen tarpeiden mukaan. Kiinteistö sijatsee hyvien kulkuyhteyksien varrella kävelymatkan päässä Kampin metroasemalta.
| Sauna | Ei saunaa |
Heli Reinberg
040 647 4900
Lähetä viesti