Myyrmäki






| Kohdenumero | 6021 |
| Kohdetyyppi | Toimistotila | Sijainti | Rajatorpantie 8A |
| Kaupunginosa | Myyrmäki |
| Huoneluku | |
| Pinta-ala | 546,0 m² |
| Vapautuminen | Heti vapaa |
| Vuokra / kk | 0 € |
| Sopimustyyppi | Toistaiseksi |
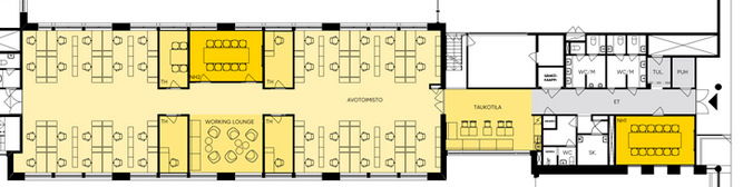
Vuokrattavana 4.kerroksen toimisto( 546 m2) Myyrmäen parhaalta paikalta erinomaisten kulkuyhteyksien varrelta. Tila on muunneltavissa asiakkaan tarpeiden mukaan. Virtatalo tarjoa vuokralaisilleen kaikki tarvittavat palvelut. Kiinteistö sijaitsee Myyrmannin ostoskeskuksen ja juna-asema vieressä.
| Sauna | Ei saunaa |
Heli Reinberg
040 647 4900
Lähetä viesti