Hakaniemi


| Kohdenumero | 5997 |
| Kohdetyyppi | Toimistotila | Sijainti | Siltasaarenkatu 12 |
| Kaupunginosa | Hakaniemi |
| Huoneluku | |
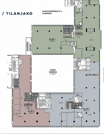
| Pinta-ala | 502,0 m² |
| Vapautuminen | Heti vapaa |
| Vuokra / kk | 0 € |
| Sopimustyyppi | Toistaiseksi |
Vuokrattavana 6.kerroksen toimistotila ( 502 m2) erinomaisten kulkuyhteyksein varrelta. Tila remontoidaan vuokralaisen tarpeiden mukaan.
Heli Reinberg
040 647 4900
Lähetä viesti