Lauttasaari














| Kohdenumero | 5879 |
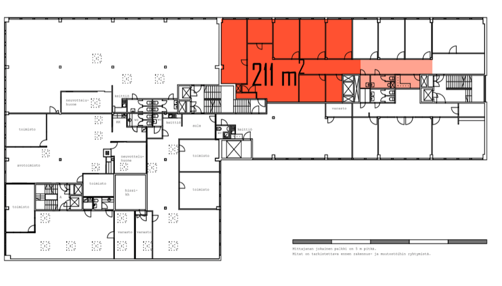
| Kohdetyyppi | Toimistotila | Sijainti | Itälahdenkatu 23 |
| Kaupunginosa | Lauttasaari |
| Huoneluku | |
| Pinta-ala | 211,0 m² |
| Vapautuminen | Heti vapaa |
| Vuokra / kk | 0 € |
| Sopimustyyppi | Toistaiseksi |
Toimistotila 211 m² vuokrattavana toimistokiinteistön ylimmästä viidennestä kerroksesta, jonne pääsee henkilöhissillä. Tila koostuu omasta tilasta (kuusi erillistä toimistohuonetta ja neuvotteluhuone) ja 40 m²:sta yhteistä tilaa (keittiö, wc ym.).
Jouko Raitanen
050 469 5444
Lähetä viesti