









| Kohdenumero | 5878 |
| Kohdetyyppi | Tuotantotila | Sijainti | Kaitilantie 30 |
| Kaupunginosa | |
| Huoneluku | |
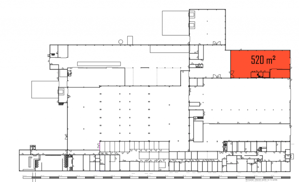
| Pinta-ala | 520,0 m² |
| Vapautuminen | Heti vapaa |
| Vuokra / kk | 0 € |
| Sopimustyyppi | Toistaiseksi |
Vuokrataan tuotanto- tai varastotila 520 m², jossa 3,6 m korkea ja 4,17 m leveä nosto-ovi. Tilan korkeus 5,6 m kattopalkkiin asti. Laaja halli, jossa erillinen n. 50 m²:n kokoinen tila varastoksi tms. Lisäksi pieni toimisto, keittiö ja wc. Tilat juuri remontoitu.
Jouko Raitanen
050 469 5444
Lähetä viesti