Eteläesplanadi 22, 00130 Helsinki

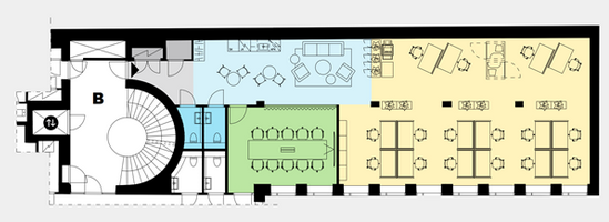
Toimistotila, 172 m², Avotoimisto, neuvotteluti...

0 € / kk

0 € / kk

Kaartinkaupun...

Perustiedot

Kohdenumero 5242
Kohdetyyppi Toimistotila
Sijainti Eteläesplanadi 22
Kaupunginosa Kaartinkaupunki
Huoneluku Avotoimisto, neuvottelutila, 2 wc:tä
Pinta-ala 172,0 m²
Vapautuminen Vapautuu: 31.12.2022
Vuokra / kk 0 €
SopimustyyppiToistaiseksi
Video

  Vuokrattavana moderni 3.kerroksen toimistotila, jossa avotilan lisäksi neuvotteluhuone, keittiö-lounge ja 2 wc:tä. Kysy lisää sp: heli.reinberg@rhg.fi.   

  Navigoi kohteeseen
Sauna Ei saunaa

Heli Reinberg

  040 647 4900
  Lähetä viesti

Haluatko lisätietoja juuri tästä kohteesta?

Syötä yhteystietosi niin lähetämme lisätietoja!

Kiitos, otamme sinuun pian yhteyttä!