Tapiola












| Kohdenumero | 5120 |
| Kohdetyyppi | Toimistotila | Sijainti | Revontulenkuja 1 |
| Kaupunginosa | Tapiola |
| Huoneluku | |
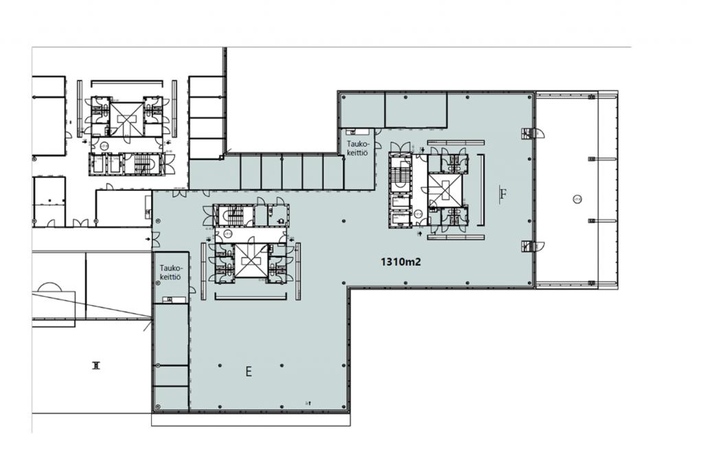
| Pinta-ala | 1 282,0 m² |
| Vapautuminen | Heti vapaa |
| Vuokra / kk | 0 € |
| Sopimustyyppi | Toistaiseksi |
Vuokrataan iso viidennen kerroksen 1282m2 toimistokokonaisuus, jonka yhteydessä katettu terassi. Tilassa on avotilaa, useita pieniä huoneita sekä muutama neuvotteluhuone. Lisäksi toimistosta löytyy keittiö- ja wc-tilat. Tilaan pääsee suoraan hissillä. Kiinteistö tarjoaa vuokralaiselle kattavat palvelut: kiinteistöstä löytyy mm. aulapalvelu, lounasravintola, kahvila, vuokrattavia kokoustiloja, auditorio ja kuntosali. Kysy lisää Jouko Raitanen Helsinki puh. 0504695444
| Sauna | Ei saunaa |
Jouko Raitanen
050 469 5444
Lähetä viesti