Kaartinkaupun...


| Kohdenumero | 4998 |
| Kohdetyyppi | Toimistotila | Sijainti | Eteläesplanadi 22 |
| Kaupunginosa | Kaartinkaupunki |
| Huoneluku | Toimistotila |
| Pinta-ala | 175,0 m² |
| Vapautuminen | Heti vapaa |
| Vuokra / kk | 0 € |
| Sopimustyyppi | Toistaiseksi |
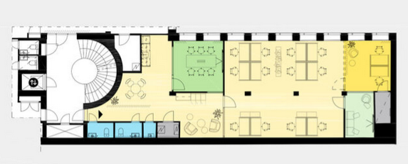
Vuokrattavana moderni 2.kerroksen toimisto (175 m2). Toimistossa on avotilan lisäksi kaksi neuvottelu- ja työskentelytilaa ja vetäytymistila. Ydinkeskustan lukuisat ravintola- ja liike-elämän palvelut ovat erittäin lähellä. Talossa kaksi ravintolaa. Kysy lisää sp: heli.reinberg@rhg.fi, toimitilat www.rhg.fi
| Sauna | Ei saunaa |
Heli Reinberg
040 647 4900
Lähetä viesti