Kamppi


| Kohdenumero | 4940 |
| Kohdetyyppi | Toimistotila | Sijainti | Pohjoinen Rautatiekatu 25 |
| Kaupunginosa | Kamppi |
| Huoneluku | Avotoimisto + 3 huonetta |
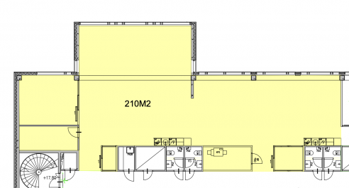
| Pinta-ala | 210,0 m² |
| Vapautuminen | Heti vapaa |
| Vuokra / kk | 0 € |
| Sopimustyyppi | Toistaiseksi |
Vuokrattavana 2.kerroksen toimisto ( 210 m2) Kampin kupeesta. Keskeisellä paikalla sijaitseva toimistokiinteistö on täysin remontoidu vuosina 2016-2017. Valoisan ja viihtyisän rakennuksen kellarissa on pyöräparkki pukuhuoneineen ja varastotiloja. Ensimmäisen kerroksen neuvottelu- ja kokoustilat ovat kaikkien vuokralaisten yhteiskäytössä. Kysy lisää sp: heli.reinberg@rhg.fi.
| Sauna | Ei saunaa |
Heli Reinberg
040 647 4900
Lähetä viesti