















| Kohdenumero | 4782 |
| Kohdetyyppi | Varasto | Sijainti | Rydönnotko 1 |
| Kaupunginosa | |
| Huoneluku | |
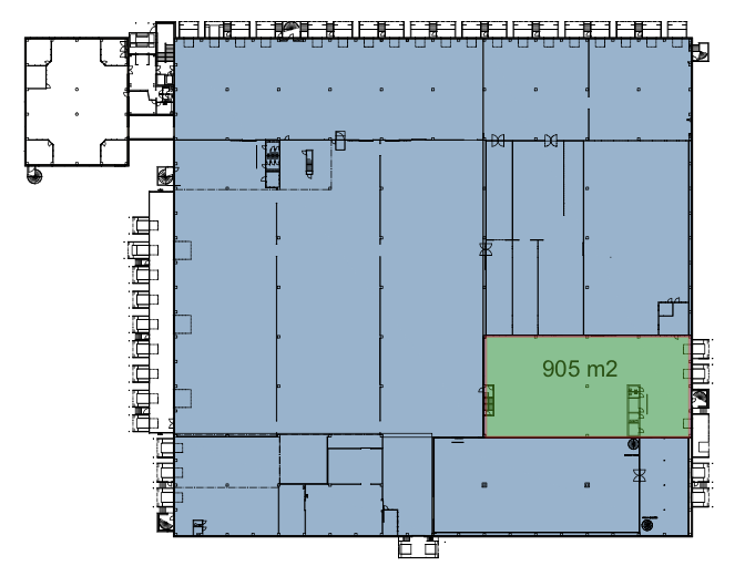
| Pinta-ala | 905,0 m² |
| Vapautuminen | Heti vapaa |
| Vuokra / kk | 0 € |
| Sopimustyyppi | Toistaiseksi |
Keskon entinen varasto/toimistokiinteistö lentokentän välittömässä läheisyydessä. Hyvät yhteydet Tampereen valtatien ja Turun kehätien ansiosta. Vapaana 895 m2 varastotila kolmella lastaustason ovella. Tilan korkeus on noin 3 metriä.
| Sauna | Ei saunaa |
Juho Viljanen
LKV
040 741 7522
Lähetä viesti