Arabianranta


| Kohdenumero | 4665 |
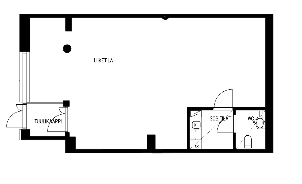
| Kohdetyyppi | Liiketila | Sijainti | Kotisaarenkatu 3 |
| Kaupunginosa | Arabianranta |
| Huoneluku | |
| Pinta-ala | 76,5 m² |
| Vapautuminen | Heti vapaa |
| Vuokra / kk | 0 € |
| Sopimustyyppi | Toistaiseksi |
Maaliskuun alussa 2026 vapautuvaa liiketilaa Arabianranta 76,5 m2 asuintalon kivijalassa. Ei sovellu kahvila/ravintolatoimintaan. kysy lisää mika.tilli@rhg.fi
| Sauna | Ei saunaa |
Mika Tilli
Välittäjä, LKV
0407013005
Lähetä viesti