

| Kohdenumero | 4644 |
| Kohdetyyppi | Toimistotila | Sijainti | Iso kylätie 21 |
| Kaupunginosa | |
| Huoneluku | |
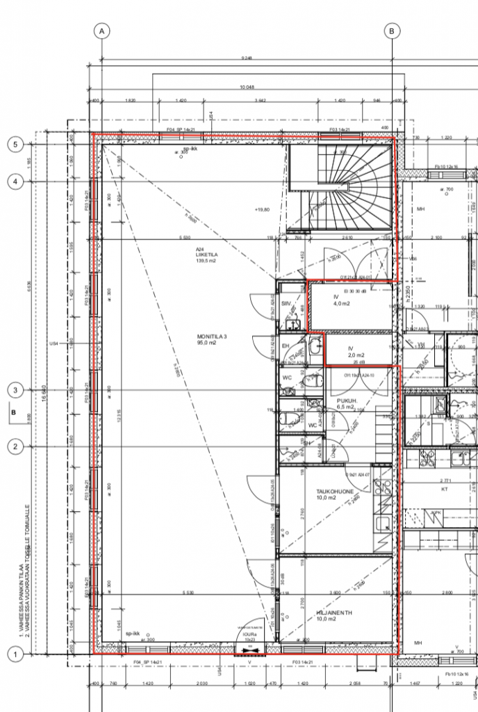
| Pinta-ala | 139,5 m² |
| Huoneiston kerros | 2 |
| Vapautuminen | Heti vapaa |
| Vuokra / kk | 0 € |
| Sopimustyyppi | Toistaiseksi |
Nikkilän keskustassa uudehko 139,5 m2 toimistotila. Tila on valoisaa, 2 h sekä avotilaa ja sos.tilat.
| Sauna | Ei saunaa |
Mika Tilli
Välittäjä, LKV
0407013005
Lähetä viesti