Munkkivuori


| Kohdenumero | 4556 |
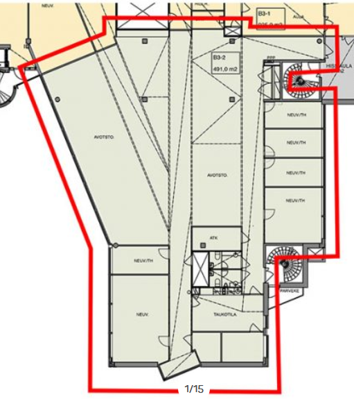
| Kohdetyyppi | Toimistotila | Sijainti | Huopalahdentie 24 |
| Kaupunginosa | Munkkivuori |
| Huoneluku | |
| Pinta-ala | 491,0 m² |
| Vapautuminen | Heti vapaa |
| Vuokra / kk | 0 € |
| Sopimustyyppi | Toistaiseksi |
Vuokrattavana 3.kerroksen toimistotila ( 491 m2) näkyvällä paikalla Huopalahdentien varrella, joka takaa hyvät julkiset liikenneyhteydet. Kiinteistöllä on riittävästi pysäköintitilaa sekä henkilökunnalle että vieraille. Munkkivuoren Huudi tarjoa viihtyisät ja nykyaikaiset toimitilat sekä monipuoliset palvelut mm aulapalvelu, edustus- ja neuvottelutilat, ounasravintola, kuntosali, sauna.
| Sauna | Ei saunaa |
Heli Reinberg
040 647 4900
Lähetä viesti