Kivistö










| Kohdenumero | 4341 |
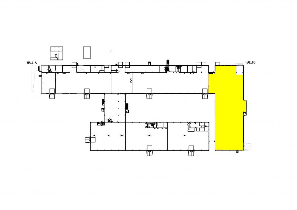
| Kohdetyyppi | Varasto | Sijainti | Kylänpääntie 4 |
| Kaupunginosa | Kivistö |
| Huoneluku | |
| Pinta-ala | 1 800,0 m² |
| Vapautuminen | Heti vapaa |
| Vuokra / kk | 0 € |
| Sopimustyyppi | Toistaiseksi |
Vuokrataan n. 10m korkea 1800m2 varastotila. Kiinteistössä on yhteensä 7 lastauspistettä. Mahdollisuus vuokrata myös piha-aluetta varaston vuokrauksen yhteydessä. Pysäköintitilaa pihalla. Kohde sijaitsee Vantaalla Kivistössä valtatie 3:n varrella Helsinki-Vantaan lentoaseman läheisyydessä. Liikenneyhteydet Hämeenlinnan väylälle ja Kehä III:lle ovat hyvät. Helsinki-Vantaan lentosema n.12 km päässä. Kysy lisää Jouko Raitanen Helsinki puh. 0504695444
| Sauna | Ei saunaa |
Jouko Raitanen
050 469 5444
Lähetä viesti