Konala






| Kohdenumero | 3897 |
| Kohdetyyppi | Toimistotila | Sijainti | Ristipellontie 16 |
| Kaupunginosa | Konala |
| Huoneluku | |
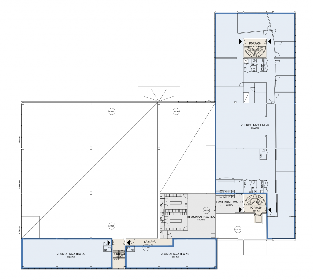
| Pinta-ala | 118,0 m² |
| Vapautuminen | Heti vapaa |
| Vuokra / kk | 0 € |
| Sopimustyyppi | Toistaiseksi |
Valoisa, rauhallinen toimisto 2. krs vapaana. Tila on selkeän suorakaiteen muotoinen, oma wc on. Oma sisäänkäynti naapuritilan kanssa. Talossa mukavuutta lisäävä keskitetty viilennys ilmanvaihdossa. Tilalle varattu 3 ap a`10 €/kk + alv. Kysy tilan vuokrahintaa. Hinta sisältää hoitovuokran.
| Sauna | Ei saunaa |
Mika Tilli
Välittäjä, LKV
0407013005
Lähetä viesti