

| Kohdenumero | 3415 |
| Kohdetyyppi | Liiketila | Sijainti | Vapaudenkatu 13 |
| Kaupunginosa | |
| Huoneluku | |
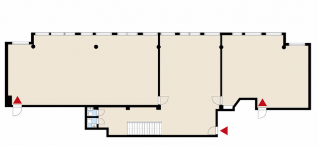
| Pinta-ala | 415,0 m² |
| Vapautuminen | Heti vapaa |
| Vuokra / kk | 0 € |
| Sopimustyyppi | Toistaiseksi |
Vuokrattavana monitoimitila ( 415 m2), joka soveltuu liikuntatilaksi, hyvinvointitilaksi tai myös toimistoksi. Tila sijaitsee 5.kerroksessa ja siihen on kolme sisäänkäyntiä. Kysy lisää sp: heli.reinberg@rhg.fi, liiketilat www.rhg.fi
| Sauna | Ei saunaa |
Heli Reinberg
040 647 4900
Lähetä viesti