Koivuhaka








| Kohdenumero | 3363 |
| Kohdetyyppi | Tuotantotila | Sijainti | Hakamäenkuja 7-9 |
| Kaupunginosa | Koivuhaka |
| Huoneluku | |
| Pinta-ala | 458,0 m² |
| Vapautuminen | Heti vapaa |
| Vuokra / kk | 0 € |
| Sopimustyyppi | Toistaiseksi |
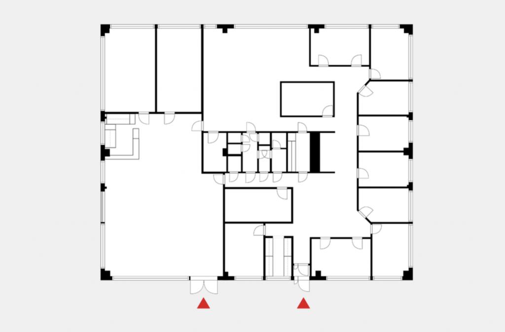
Vuokrataan 458m2 monitoimitila, jossa on toimistoa sekö varasto-/tuotantotilaa. Varastoon on lastauslaituri ja nosto-ovi. Maksuttomia pysäköintipaikkoja tilojen edessä talon pihalla. Kysy lisää Jouko Raitanen Helsinki puh. 0504695444
| Sauna | Ei saunaa |
Jouko Raitanen
050 469 5444
Lähetä viesti