Lauttasaari












| Kohdenumero | 2840 |
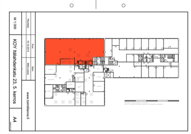
| Kohdetyyppi | Toimistotila | Sijainti | Itälahdenkatu 23 |
| Kaupunginosa | Lauttasaari |
| Huoneluku | |
| Pinta-ala | 308,0 m² |
| Vapautuminen | Heti vapaa |
| Vuokra / kk | 0 € |
| Sopimustyyppi | Toistaiseksi |
Lauttasaaressa Itälahdenkatu 23 remontoitu 5. krs 308m2 toimistotila.Näyttävä kivinen sisääntuloaula, punavalkoinen lattia ja virtaviivainen punainen keittiö sekä erillinen neuvotteluhuone. Kaksi wc:tä. Kattoikkunallinen toimistotila sijaitsee rakennuksen ylimmässä kerroksessa. Käytössä henkilöhissi.
Jouko Raitanen
050 469 5444
Lähetä viesti