Sinimäki


| Kohdenumero | 2014 |
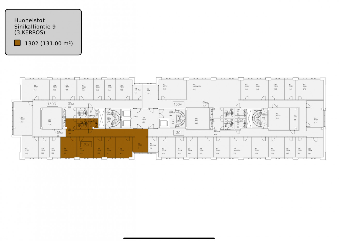
| Kohdetyyppi | Toimistotila | Sijainti | Sinikalliontie 9 |
| Kaupunginosa | Sinimäki |
| Huoneluku | |
| Pinta-ala | 131,0 m² |
| Vapautuminen | Heti vapaa |
| Vuokra / kk | 0 € |
| Sopimustyyppi | Toistaiseksi |
Vuokrataan 131m2 edullista toimistotilaa Sinimäessä Turunväylän varrella. Kohde on helposti saavutettavissa kaikista ilmansuunnista. Tila on muokattavissa asiakkaan tarpeen mukaan. Pysäköintipaikkoja on kiinteistön pihalla. Kysy lisää: jouko.raitanen@rhg.fi/0504695444
| Sauna | Ei saunaa |
Jouko Raitanen
050 469 5444
Lähetä viesti