Itäinen kesku...
















































| Kohdenumero | 215 |
| Kohdetyyppi | Puutalo-osake | Sijainti | Itäinen pitkäkatu 56 |
| Kaupunginosa | Itäinen keskusta |
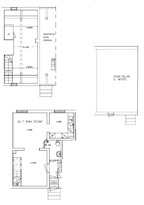
| Huoneluku | 3h+k+kph+ullakko- ja alustatilaa |
| Pinta-ala | 54,5 m² |
| Lisätietoja pinta-alasta | Mitattu pinta-ala 54,5m² |
| Lämmitysjärjestelmä | Sähkö ja puu |
| Ranta | Ei valittu |
| Rannan tyyppi | Meri |
| Vapautuminen | Sopimuksen mukaan, nopeastikin |
| Neliöhinta | 3 486,23 € |
| Hoitovastike | 222,20 € |
| Myyntihinta | 169 137,55 € |
| Velkaosuus | 20 862,45 € |
| Velaton hinta | 190 000 € |
Itäisen keskustan kauniisti remontoitu puutalohuoneisto kahdessa kerroksessa. Olohuoneessa toimiva, valkoinen kakluuni. Laajennusvaraa niin ullakolla kuin alustassakin. Yläkerran makuuhuone reilun kokoinen, vaikka jaettavissa kahdeksi huoneeksi+ laajennettavaa ullakkotilaa. Alustassa paljon tilaa varastoksi/asuintilojen laajennukseen. Kaunis 1909 valmistuneen taloyhtiön pihapiiri, yhtiöllä oma tontti. Hyvin hoidettu yhtiö, kaikki isot remontit tehty. Huoneisto vapautuu tarvittaessa nopeasti.
| Keittiö | Keraaminen liesi, liesituuletin, jääkaappipakastin, apk, pyykinpesukone |
| Keittiön lattia | parketti |
| Keittiön seinät | maalattu |
| Kylpyhuone | Kaakeloitu kph, lattialämmitys, allaskaapisto, suihku, kanavapuhallin |
| Kylpyhuoneen lattia | laatta |
| Kylpyhuoneen seinät | laatta |
| Sauna | Ei saunaa |
| Olohuoneen lattia | parketti |
| Makuuhuoneet | Yläkerrassa iso makuuhuone, jaettavissa. |
| Makuuhuoneiden lattia | muovimatto |
| Säilytystilat | Kaapistot, yläkerrassa pieni varasto, paljon alustatilaa |
| Nimi | Asunto-osakeyhtiö Itä |
| Rakennusvuosi | 1909 |
| Lämmitysjärjestelmä | Sähkö ja puu |
| Rakennusmateriaali | Hirsi |
| Talossa hissi | Ei |
| Tontin koko | 2282 m² |
| Tontin omistus | Oma |
| Energialuokka | E |
| Kiinteistöhuolto | Huoltoyhtiö |
| Asuinhuoneistojen määrä | 30 |
| Asuinhuoneistojen pinta-ala yhteensä | -1,0 m² |
| Lunastuslauseke | Kyllä, osakkailla ja taloyhtiöllä |
| Velkaosuuden maksaminen | Velkaosuuden voi maksaa |
| Suoritetut remontit | Peltikattojen uusinta 2007, B-talon maalaus 2009, Ulkovalaistuksen uusinta 2010.Jäteastia-alue 2016. Taloyhtiön sähkö- ja antenniverkon uusinta 2017-18. Lukostojen uusinta ja ovien huolto 2018. Rakennepainuman korjaus 2021. Julkisivuremontti 2019-20. Viemäreiden sukitus, peltikattojen maalaus 2023. Piipunhattujen asennus, ulkorakennuksen rakennekorjaus ja sokkelikorjauksia 2024. |
| Tulevat remontit | Hallituksen kunnossapitotarveselvityksessä mainitaan -pihan kunnostus (sadevedet, kivetys) 2025-2026. Portaiden ja kaiteiden korjaus 2025-2026. |
| Isännöinti | Isännöinti Päivärinta Ky Jari Kankare, 050-4119776, Brahenkatu 14D 91, 20100 Turku |
| Hoitovastike | 222,20 € / kk |
| Rahoitusvastike | 219,38 € / kk |
| Yhtiövastike | 441,58 € / kk |
| Vesimaksu | 14,50 € / hlö / kk |
| Lisätietoja vesimaksusta | Vesimaksu 14,50 €/hlö/kk |
| Muut maksut | Varainsiirtovero 1,5 % kauppahinnasta. Vesi ja sähkö kulutuksen mukaan |
| Tehdyt korjaukset | Huoneisto remontoitu kokonaan 2000 -luvulla. |
Marjut Suonpää
LKV
040 537 4453
Lähetä viesti