

























































































































| Kohdenumero | 109 |
| Kohdetyyppi | Omakotitalo | Sijainti | Piitontie 150 |
| Kaupunginosa | Lielahti |
| Kiinteistötunnus | 445-478-1-32 |
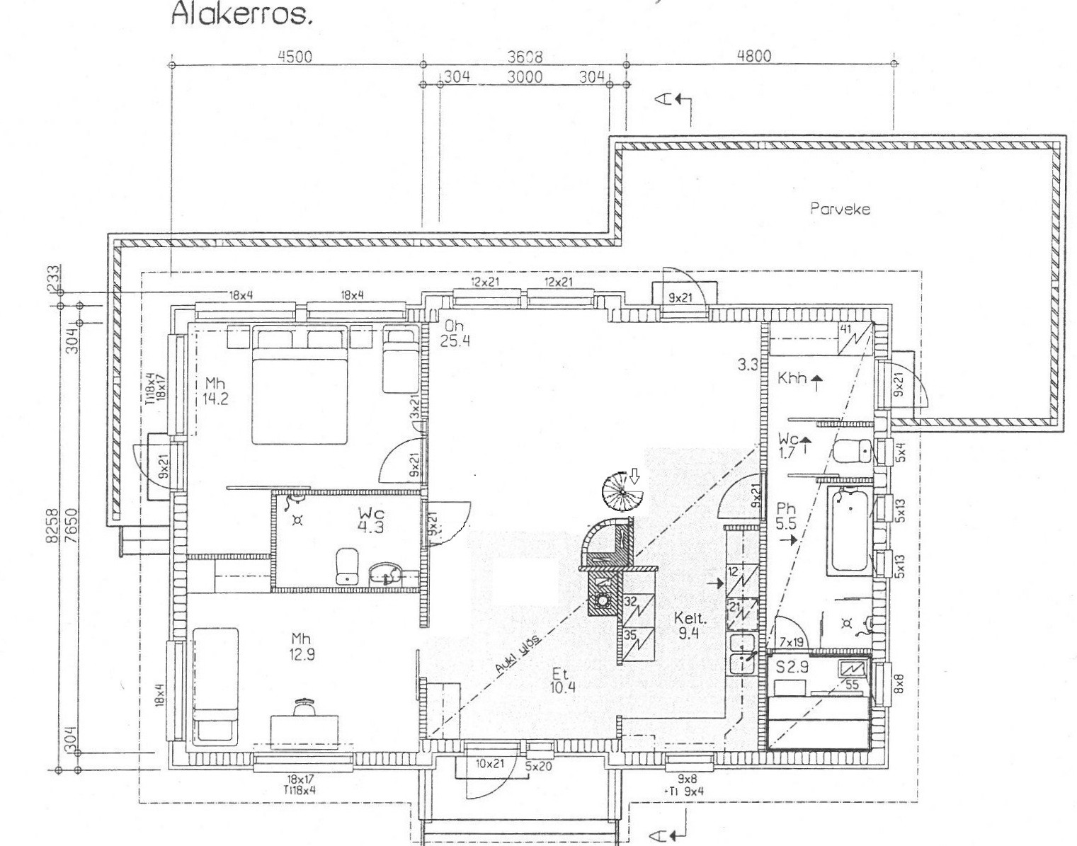
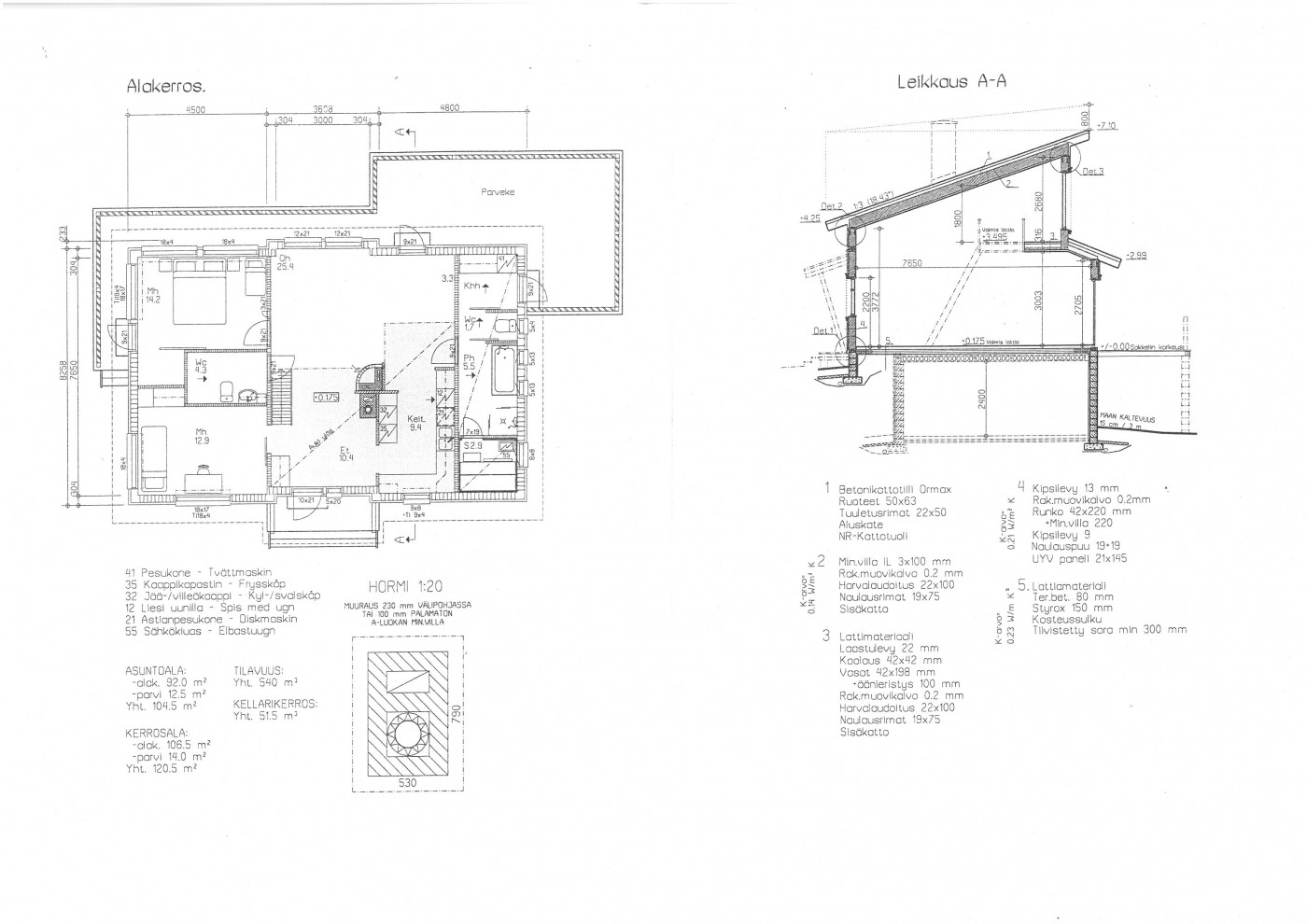
| Huoneluku | 4h+avokeittiö+aulahuone+2xwc/kph+s+khh+ask.huone+tekn.tila+autotalli+ kesäkeittiö + oma rantapalsta |
| Pinta-ala | 120,0 m² |
| Kokonaispinta-ala | 172,0 m² |
| Kerrosmäärä | 2 |
| Lisätietoja pinta-alasta | Pinta-aloja ei ole tarkistusmitattu. Kauppa ei ole pinta-alaperusteinen. |
| Tontin pinta-ala | 19 120,0 m² |
| Tontti | Oma tontti |
| Lämmitysjärjestelmä | Vesikiertoinen lattialämmitys/puu+ sähkö sekä varaava takka+ aurinkokeräimet (tyhjiöputki-)+ ilmalämpöpumppu |
| Ranta | Oma ranta |
| Rannan tyyppi | Meri |
| Vapautuminen | Sopimuksen mukaan |
| Neliöhinta | 4 125 € |
| Myyntihinta | 495 000 € |
Kesämökin ja omakotitalon yhdistelmä ja puoli tuntia Turkuun, vartti Paraisille. Ei naapureita näköetäisyydellä. 2004 -valmistunut puutalo isoilla terasseilla ja kesäkeittiöllä täysin omassa rauhassa. 1000m²:n rantapalstalla (400m) sauna, laituri ja katettu terassi. Osuus yhteisiin kalavesiin. Iso, oma tontti 1,9 ha. Tontilla upeita kalliota ja kallioisia piilopaikkoja. Asuintilat pääosin yhdessä kerroksessa, yläkerrassa 1 huone sekä aulahuone, parveke kiertää lähes koko talon. Alustassa askarteluhuone, autotalli sekä varastotilaa. Terassilla puulämmitteinen palju (puhdistusjärjestelmällä). Oma porakaivo ja juuri asianmukaiseksi täydennetty jätevesijärjestelmä. Hyvin edulliset asumiskustannukset, varsinkin jos lämmität puulla. Aurinkokeräimet, varaava takka/leivinuuni, ilmalämpöpumppu. Talon läheisyydessä kaksi vierasmajaa. Upea paikka. Tule ja ihastu! Sovi oma esittelysi 040-5374453 /marjut@lkvtiimi.fi
| Keittiö | Jääkaappipakastin (ilman vesiliitäntää), kaasuliesi, sähköliesi, parila, liesituuletin, leivinuuni, apk. Kesäkeittiössä vesiliitäntä (lämmin ja kylmä vesi) |
| Keittiön lattia | parketti |
| WC-tilat | 2wc:tä |
| Kylpyhuone | Kaakeloidut kylpyhuoneet. Saunassa sähkökiuas |
| Kylpyhuoneen lattia | laatta |
| Kylpyhuoneen seinät | laatta |
| Sauna | Oma sauna |
| Olohuone | Korkea olohuone, tupakeittiö. |
| Olohuoneen lattia | parketti |
| Olohuoneen seinät | tapetti, maalattu |
| Makuuhuoneet | Alakerrassa kaksi makuuhuonetta, yläkerrassa yksi makuuhuone |
| Makuuhuoneiden lattia | Alakerrassa parkettia, yläkerta laminaattia |
| Makuuhuoneiden seinät | maalattu, tapetti |
| Kodinhoitohuone | Kodinhoitohuone eniten käytössä olevan sisäänkäynnin yhteydessä. Kurasyöppö, pk-liitäntä. |
| Säilytystilat | Kaapistot, alakerran toisessa makuuhuoneessa vaatehuone. Alustassa isot varastotilat. |
| Auton säilytys | Autotalli |
| Rakennusvuosi | 2004 |
| Energiatodistus | C2018 |
| Lämmitysjärjestelmä | Vesikiertoinen lattialämmitys/puu+ sähkö sekä varaava takka+ aurinkokeräimet (tyhjiöputki-)+ ilmalämpöpumppu |
| Rakennusmateriaali | Puurunko/lautaverhous |
| Muut maksut | Varainsiirtovero 3 % kauppahinnasta. |
| Kiinteistövero | 600 € / v |
Marjut Suonpää
LKV
040 537 4453
Lähetä viesti